Arroyo Grande High School has begun construction on an additional gym on the south end of campus, across the street from the main campus.

The project began in 2023 and is now being brought to fruition. The building will have the facilities to hold physical education classes, sports practices, and small-scale tournaments; however, most games will still be held in the main gym.
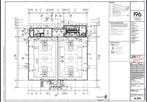
“The south gym will hold two regulation CIF basketball courts, two small team rooms, associated restrooms, and a small foyer,” written in a letter, addressed to AGHS Neighbors, by Andy Stetson, the Director of Facilities for Lucia Mar Unified School District.

In addition to new basketball courts, the gym project includes the construction of four beach volleyball courts. Previously, both boys and girls beach volleyball teams have used the Pismo Beach courts to practice. The rise in king tides in recent years has made it difficult for the teams to continue practicing on the Pismo Beach courts because the tides would wash them out.
As well as the gym construction, the project requires the road to be widened to meet code requirements.
“Castillo Del Mar has to have curb, gutter, and sidewalk,” AGHS Principal Brad Grumbles said.
Grumbles also explained that students who park on Castillo Del Mar (outside of the back parking lot) should be aware of the construction because it will restrict how many cars are able to park on the street.
All people attending events in the gym will have to park in the school’s back parking lot and then cross the street. This is because all parking in the new gym lot will be handicap accessible to meet state regulations. The gym lot will also include a bus lane.
The cost for the auxiliary gym is quoted at $11.5 million, $600,000 of which was donated by the Five Cities Men’s Club. The estimate is subject to change due to inflation and consideration of potential issues. The school also purchased a $15,000 street-legal golf cart to cross the road between main campus and the south gym.
Currently, the construction of the south gym is projected to be completed in early 2028, but is subject to change. Once construction is complete, the gym will be open to students and community teams.